• ita
  • eng
  • esp
  • home
  • chi siamo
  • certificazioni e garanzie
  • portfolio
  • aree
  • servizi
    • servizi per le diocesi
    • servizi per le parrocchie
    • servizi per fondazioni e associazioni
    • servizi per case generali
    • servizi per case provinciali
    • servizi per enti e istituti
  • contatti
  • 800 17 10 35
    • info@provobis.it
    • provobis
Home > Clienti > Capitolo della Cattedrale di Oristano

Capitolo della Cattedrale di Oristano

 

  • Superficie commerciale
    1145 mq.
  • Cubatura totale
    2979 mc.
  • Responsabile progetto
    Dott. Paolo Baita
  • Progetto e Direzione lavori
    Arch. Manuela Cossu
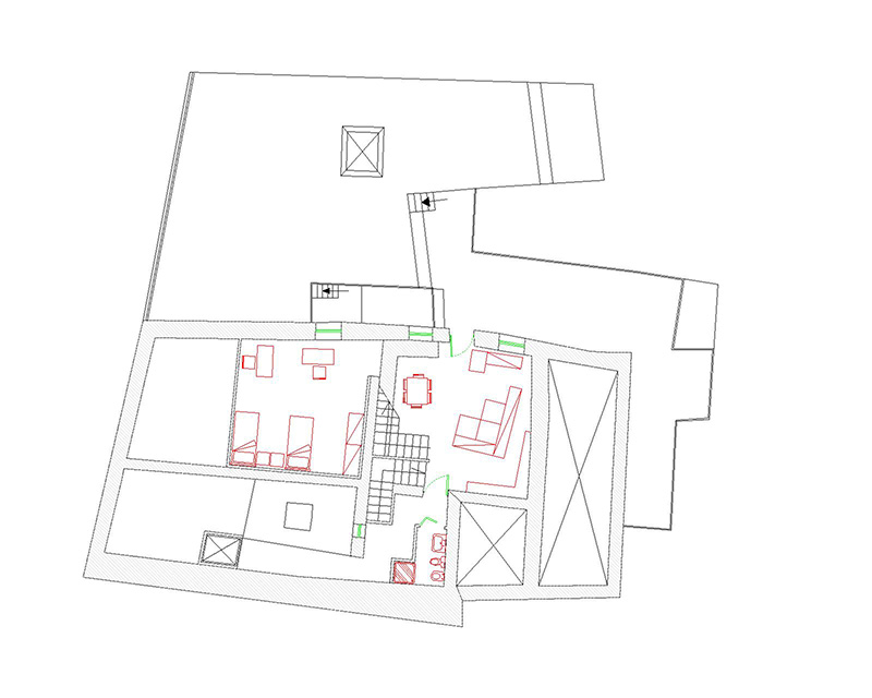
Oggetto

Intervento di riconversione immobiliare e messa a reddito del complesso immobiliare sito in Oristano, via Ciutadella de Menorca – via Eleonora d’Arborea.

Premesse

Il complesso immobiliare sito nel centro storico di Oristano risale ai primi del XVII secolo. Si tratta di una tipica abitazione padronale dove, al piano terra, trovavano collocazione la cucina, il forno, le cantine ed i depositi mentre al primo piano le camere e lo studio che si affacciano sul giardino interno. L’immobile è caratterizzato da notevole pregio storico architettonico e, sino a poco tempo addietro, era destinato ad abitazione dei canonici del Capitolo. Il tempo e gli eventi atmosferici hanno ormai degradato la struttura che necessita urgenti interventi di ristrutturazione ed adeguamento. Il Capitolo ha quindi manifestato la volontà di riconversione e messa a reddito.

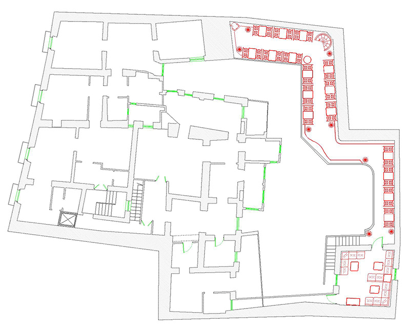
L'intervento

La prima fase di intervento è stata caratterizzata dal check up immobiliare finalizzato a valutare la titolarità giuridica e la consistenza dell’intero patrimonio immobiliare del Capitolo per poi analizzare i vincoli architettonici e di destinazione d’uso stabiliti dal PRG comunale. In seguito, attraverso uno studio di fattibilità sono state verificare le possibili alternative di riconversione ed individuata la destinazione turistico ricettiva come la più consona. Si è proceduto, quindi, con la redazione di un business plan per analizzare costi di progettazione e ristrutturazione e ricavi derivanti dalla gestione e dalle proposte di alienazione di parte del patrimonio immobiliare del Capitolo.

Il progetto

L’analisi tecnico architettonica è stata eseguita in loco con numerosi saggi tesi a verificare la solidità delle fondamenta e delle mura portanti ed ha rilevato la presenza di materiali e tecniche costruttive miste, proprie del periodo, quali mattoni laterizi, pietra basaltica e mattoni ladiri.

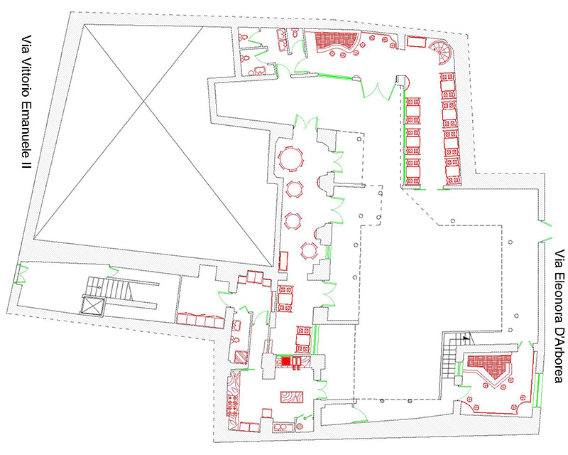
Il progetto architettonico ha quindi proposto una riconversione dell’immobile in albergo nel quale le camere verranno realizzate nei piani primo e mansarda. Il piano terra, previo abbassamento del piano di campagna, sarà destinato a reception e sala colazioni. L’accesso principale verrà invertito rispetto al progetto architettonico attuale, l’albergo vedrà sulla via Eleonora d’Arborea il suo sviluppo principale con l’apertura della corte interna, ora celata da un alto muro. L’ingresso dalla via Ciutadella de Menorca sarà riservato esclusivamente alle operazioni interne ed al personale.

home chi siamo dove siamo certificazioni e garanzie codice etico portfolio aree servizi contatti
credits F.A.Q. informativa privacy
  • TRUST Srl
    capitale sociale euro 10.000,00 i.v.
    c.f. e p.iva 03470460928
    REA CA - 273901
  • Sede Roma
    via E. Maragliano, 23
    00151 Roma (RM)
  • Sede Milano
    via Melchiorre Gioia, 67
    20124 Milano (MI)
  • Sede Cagliari
    via Andorra, 4
    09045 Quartu S. E. (CA)
  • Sede Sassari
    via Cagliari, 18
    07100 Sassari (SS)